Splendido appartamento trilocale con giardino privato nel cuore di Dolo
Descrizione
                                        Proponiamo in vendita una splendida soluzione abitativa disponibile da subito, situata nella zona più bella di Dolo, il vero cuore pulsante della località rivierasca. Questa rinomata cittadina è apprezzata non solo per la sua bellezza paesaggistica e storica, ma anche per la sua strategica posizione tra Venezia e Padova.
Dolo offre un'ampia gamma di servizi essenziali: negozi, scuole di ogni grado, ospedale e supermercati sono facilmente accessibili. Il centro storico vibrante invita a scoprire ristoranti raffinati e locali vivaci che attraggono visitatori tutto l’anno.
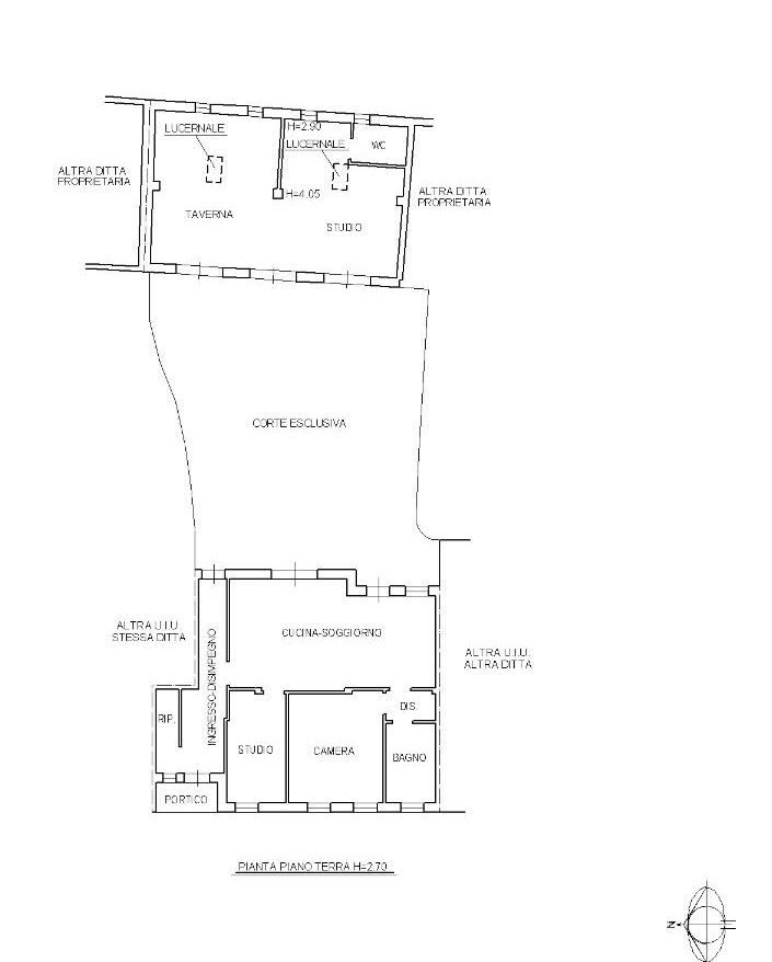
L'immobile proposto è un luminoso appartamento al piano terra dotato di ingresso indipendente ed è composto da: ingresso accogliente, soggiorno con cucina a vista perfetta per intrattenere amici e famiglia, due camere da letto spaziose e un bagno moderno.
Un elemento distintivo dell’appartamento è il grazioso giardino privato interno che misura circa 159 mq - ideale per momenti all’aperto o semplicemente per godersi la tranquillità del verde circostante. Oltre allo spazio esterno principale, troviamo una deliziosa dependance open space caratterizzata da ampie vetrate che creano connessioni armoniose tra indoor ed outdoor; gli eleganti travetti a vista conferiscono calore all'ambiente. Completata con bagno privato,
questa parte della casa può essere adibita a studio personale, palestra privata oppure come ulteriore appartamentino dedicato agli ospiti o alle feste.
Non lasciarti sfuggire questa opportunità unica! Contattaci oggi stesso per ulteriori informazioni, la visionare delle foto averrà previo colloquio telefonico.
Visitate il nostro sito: sempre aggiornato con le nostre ultime proposte immobiliari! Oppure venite a trovarci in agenzia: Gaia Immobiliare di Silvia Polato via L. da Vinci 15/5 Vigonovo (VE); o chiamate lo 049/9832488, o inviateci un email al seguente indirizzo: . Saremo sempre a vostra disposizione per qualsiasi informazione! La nostra agenzia opera principalmente nelle zone di Vigonovo, Strà, Fossò, Camponogara, Fiesso d'Artico, Padova, Vigonza, Noventa Padovana, Saonara, Ponte san Nicolò e Albignasego
Gaia immobiliare è Punto Partner Solo Affitti SpA, scopri le nostre proposte per affittare in sicurezza!
Visita il nostro sito:
Il presente annuncio è indicativo e non costituisce vincolo o presupposto contrattuale. Tutte le misure riportate devono considerarsi indicative.
                                Dolo offre un'ampia gamma di servizi essenziali: negozi, scuole di ogni grado, ospedale e supermercati sono facilmente accessibili. Il centro storico vibrante invita a scoprire ristoranti raffinati e locali vivaci che attraggono visitatori tutto l’anno.
L'immobile proposto è un luminoso appartamento al piano terra dotato di ingresso indipendente ed è composto da: ingresso accogliente, soggiorno con cucina a vista perfetta per intrattenere amici e famiglia, due camere da letto spaziose e un bagno moderno.
Un elemento distintivo dell’appartamento è il grazioso giardino privato interno che misura circa 159 mq - ideale per momenti all’aperto o semplicemente per godersi la tranquillità del verde circostante. Oltre allo spazio esterno principale, troviamo una deliziosa dependance open space caratterizzata da ampie vetrate che creano connessioni armoniose tra indoor ed outdoor; gli eleganti travetti a vista conferiscono calore all'ambiente. Completata con bagno privato,
questa parte della casa può essere adibita a studio personale, palestra privata oppure come ulteriore appartamentino dedicato agli ospiti o alle feste.
Non lasciarti sfuggire questa opportunità unica! Contattaci oggi stesso per ulteriori informazioni, la visionare delle foto averrà previo colloquio telefonico.
Visitate il nostro sito: sempre aggiornato con le nostre ultime proposte immobiliari! Oppure venite a trovarci in agenzia: Gaia Immobiliare di Silvia Polato via L. da Vinci 15/5 Vigonovo (VE); o chiamate lo 049/9832488, o inviateci un email al seguente indirizzo: . Saremo sempre a vostra disposizione per qualsiasi informazione! La nostra agenzia opera principalmente nelle zone di Vigonovo, Strà, Fossò, Camponogara, Fiesso d'Artico, Padova, Vigonza, Noventa Padovana, Saonara, Ponte san Nicolò e Albignasego
Gaia immobiliare è Punto Partner Solo Affitti SpA, scopri le nostre proposte per affittare in sicurezza!
Visita il nostro sito:
Il presente annuncio è indicativo e non costituisce vincolo o presupposto contrattuale. Tutte le misure riportate devono considerarsi indicative.
Riferimento
2163
Prezzo
330.000 €
Mq
171
Tipologia
Appartamento
Contratto
vendita
Comune
Dolo
Zona
Dolo - Centro
Anno di costruzione
2005
Camere
2
Bagni
2
Ambienti
| Soggiorno angolo cottura | |
| Taverna | |
| Giardino | 
Livelli & comfort
| Livelli | Piano terra | 
| Aria condizionata | |
| Riscaldamento autonomo | |
| Animali ammessi | |
| Ingresso indipendente | |
| Numero portoni | 1 | 
| Vasca | 
Informazioni Extra
| Impianto elettrico | A norma | 
| Panorama | Vista giardino | 
 
                    